В отличие от методических камерные печи заготовки не перемещают, а они подвергаются нагреву за счет работы одних и тех же горелок. Следовательно, при желании менять температурный режим в процессе нагрева необходимо менять производительность горелок. Это заставляет обращать особое внимание при их выборе на возможную глубину регулирования. Эти камерные печи обычно действуют циклично, периодически, по возможна и непрерывная работа печей. В последнем случае температурный режим и работа горелок будут постоянными.

Рис. Х-8. Циркуляционный рекуперативный колодец с тангенциальным расположением горелок.
На металлургических заводах широко распространены нагревательные колодцы, служащие для высокотемпературного нагрева стальных слитков, располагаемых неподвижно в вертикальном положении на подипе. Нагревательные колодцы, как правило, работают с подогревом воздуха до 400-600° С. Основная трудность, которая возникает при осуществлении газового отопления колодцев, заключается в том, что необходимо обеспечить одинаковый и равномерный по высоте нагрев всех слитков независимо от места их установки при максимальной вместимости колодца.
На рис. Х-8 показан рекуперативный нагревательный колодец с дутьевыми горелками, тангенциально расположенными в его нижней части, непосредственно над подиной. Сгорание газа происходит в умеренно светящихся факелах. Продукты сгорания, омывая при своей циркуляции установленные слитки, удаляются через центральную шахту. Слитки располагаются по окружности на расстоянии 500-700 мм друг от друга.
Для улучшения равномерности нагрева слитков по высоте нередко устанавливают несколько рядов горелок, доводя их общее

Рис. Х-9. План камерной проходной печи для нагрева заготовок.

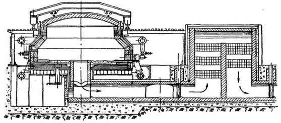
Рис. Х-10. Рекуперативная камерная печь, оборудованная дутьевыми горелками.
число до 20-30. Отвод продуктов сгорания, как правило, выгоднее осуществлять из нижней части колодца.
На рис. Х-9 показана камерная проходная печь для нагрева длинных заготовок, загружаемых с одного торца и выдаваемых с другого. Печь оборудована дутьевыми горелками, работающими на холодном воздухе. Горелки работают при одинаковой нагрузке, обеспечивая равномерность нагрева в пределах всей длины заготовок. Камерные печи с дутьевыми горелками приведена на рис. Х-10.

Рис. Х-11. Газовая печь для скоростного нагрева прутков и труб.
Обе эти печи служат для нагрева заготовок перед их ковкой или штамповкой. На металлургических заводах имеются печи, аналогичные по устройству, но большие по размерам.
На рис. Х-11 изображена оригинальная трехсекционная печь для скоростного нагрева труб и прутков, снабженная тенгенциально расположенными инжекционными горелками. Камерные печи работают без подогрева воздуха; нагреваемые трубы или прутки последовательно передвигаются рольгангом.